Vážený zákazníku, Váš prohlížeč Internet Explorer nepodporuje technologie, které využívá náš e-shop. Pro správné fungování stránky používejte aktuálnější prohlížeče (Edge, Chrome, Firefox, Safari).

WHIRLPOOL AKP745WH

Samostatná horkovzdušná trouba se samočistícím systémem SmartClean™ S technologií SmartClean™ vyčištíte snadno a rychle svou troubu a navíc bez nutnosti použití jakýchkoliv de ...Více informací

Cena:

10 990,00  CZK
9 082,64  CZK  bez DPH
Přidat poznámku k produktu
Kód: 211TPAKP745WH
Není skladem
EAN: 8003437937781
Do košíku

Způsob zobrazení

Samostatná horkovzdušná trouba se samočistícím systémem SmartClean™

 

S technologií SmartClean™ vyčištíte snadno a rychle svou troubu a navíc bez nutnosti použití jakýchkoliv detergentů. Speciální povrch vnitřku trouby umožňuje čištění párou, stačí vložit nádobu s 250 ml vody, zapnout příslušný program a po ukončení programu setřít houbou zbytkové nečistoty.

 

Hlavní výhody:

 

SmartClean™ - čištění vnitřního prostoru pomocí páry design ABSOLUTE Core - intuitivní ovládání objem 60 l bílé provedení

 

Trouba je v designu ABSOLUTE Core, který je charakteristický intuitivním ovládáním v tomto případě pomocí 2 zápustných otočných knoflíků, masivním madlem a černobílým grafickým displejem. 

 

Součástí příslušenství jsou teleskopické výsuvy, rošt a 2 plechy na pečení.

 

EAN kód 8003437937781

 

Typ vestavná samostatná

 

Kategorie trouby elektronická

 

Druh trouby horkovzdušná + kruhové topné těleso

 

Vlastnosti

 

Energetická třída

 

A

 

Index energetické účinnosti (2010/30 / EC) 106,9

 

Spotřeba energie - Konvenční funkce 0,85 kWh/cyklus

 

Spotřeba energie - Teplovzdušní funkce 0,85 kWh/cyklus

 

Design

 

ABSOLUTE Core

 

Barva bílá

 

Displej trouby / kávovaru černobílý grafický

 

Zobrazení průběhu programu ano

 

Kontrola teploty mechanická

 

Kontrola času elektronická

 

Maximální pracovní teplota 250 °C

 

Funkce trouby

 

Víceúrovňové pečení 2 úrovně pečení

 

Statický horní + spodní ohřev ano

 

Gril ano

 

Teplovzdušný ohřev / Ventilátor s topným tělesem ano

 

Ventilátor + statický horní a spodní ohřev ano

 

Samočištění trouby

 

SmartClean™
Parametrické vyhledávání
Barva BÍLÁ
Maximální příkon W 3200
Značka WHIRLPOOL
Energetická třída A
Gril ANO
Teleskopické vysouvání plechu ANO
Čištění trouby PARNÍ
Objem trouby L 65
Teplotní sonda NE
Displej ANO
Výška výrobku cm 59.5
Šířka výrobku cm 59.5
Hloubka výrobku cm 56.4
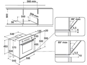
Rozměry pro vestavbu
Šířka pro vestavbu cm 56
Hloubka pro vestavbu cm 55
Výška pro vestavbu cm 60
//= detail/score.html
Odběrové místoSkladem
Praha - hlavní skladNe
Praha - přebalené zbožíNe
Praha - HostiviceNe
Plzeň - hlavní skladNe
Pardubice - hlavní skladNe
Centrální skladNe